
O projeto do CIES - Centro de Inovação Empresarial de Santarém é uma parceria entre o Município de Santarém e a NERSANT – Associação Empresarial da Região de Santarém, visando a instalação de um centro de acolhimento de novas empresas em desenvolvimento, que não disponham ainda de instalações próprias.
Esta iniciativa, fundamental para a estratégia de apoio ao empreendedorismo, estará em funcionamento no início do segundo semestre de 2014.
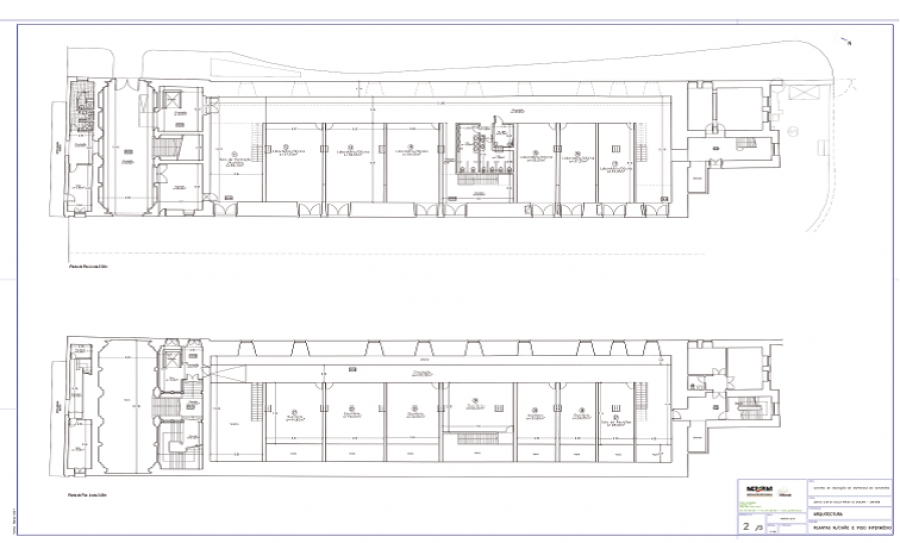
A implantar na antiga Escola Prática de Cavalaria, situada na zona do planalto (localização nobre no contexto da cidade de Santarém) o CIES disponibilizará uma área bruta de 1480 m², repartida por laboratórios, oficinas, salas de formação, auditórios e 6 salas para incubação de empresas, de 20 m² a 50 m².
A dinâmica deste Centro dará um forte incentivo à competitividade regional, através do aumento e consolidação das capacidades de I&DT e de inovação tecnológica, bem como da valorização comercial dos resultados da tecnologia, incluindo a capacidade prevista de acolher e/ou incubar empresas de base tecnológica.
Principais objetivos da criação deste Centro:
• Apoiar a criação e o desenvolvimento de empresas de base tecnológica nos sectores agroindustrial e alimentar, em particular empresas que contribuam para o desenvolvimento da Região, estabelecendo ligações entre Entidades do Sistema Científico e Tecnológico (ESCT) e os agentes locais.
• Promover, consolidar e expandir os serviços e apoio prestado a atividades na área agroindustrial e à valorização económica e social dessas atividades, tendo como principal objetivo a evolução estrutural da economia nacional para o sector agroindustrial.
• Estimular relações institucionais entre as empresas;
• Promover a valorização económica e o empreendedorismo, estimulando a criação e o desenvolvimento de empresas;
• Avaliar o potencial comercial e de valorização das tecnologias;
• Apoiar a elaboração de planos de negócio e à identificação e negociação de soluções de investimento / financiamento;
• Prospeção, promoção e apoio à elaboração de projetos de I&DT e inovação em consórcio com empresas
• Apoiar a execução de candidaturas a programas de financiamento e de inovação empresarial• Promoção de patentes e apoio à proteção da propriedade intelectual• Participar em projetos de I&DT e ações de formação relacionadas com a proteção da propriedade intelectual, transferência de tecnologia e empreendedorismo
• Incentivar a criação de fóruns de debate subsetoriais para articular estratégias conjuntas de captação de oportunidades de negócio e partilha de recursos entre as empresas envolvidas
• Incentivar a cooperação entre as empresas incubadas e outras entidades do sector agroindustrial,
• Desenvolver e alargar a criação de estágios profissionalizantes nas empresas;
• Promover iniciativas conjuntas para apresentação de produtos de base tecnológica do sector em feiras nacionais / internacionais, divulgando competências nacionais do sector;
• Promover a internacionalização das empresas e dos seus núcleos de desenvolvimento, através do apoio à participação em projetos internacionais e à ligação a redes internacionais de ciência, tecnologia e inovação, a nível comunitário e das regiões mediterrânica e ibero-americana.
Caracterização da infraestrutura:
Esta estrutura, para além de facultar recursos e serviços especializados às empresas incubadas, disponibiliza espaços devidamente equipados, suporte administrativo, avaliação do potencial de valorização e apoio à elaboração de projetos. O edifício que irá albergar este Centro apresenta uma área bruta de 1300 m² dividida por três pisos, com cerca de 800 m² no r/c, 600 m² no 1º piso e 100 m² no 3º piso.


